產品型號:ZZWPE
公稱通徑:DN20~200mm NPS 3/4"~8"
公稱壓力:PN1.6~4.0MPa;CLASS 150~300LB
連接方式:絲口、法蘭
適用溫度:-20~+425℃
閥芯形式:非平衡式單座閥芯
適用介質:冷熱水、蒸汽
產品概述
ZZYPE電動自力式溫度調節閥,是由閥門 、執行器、溫控器、傳感器和毛細管等部件組成的一體閥,直接對蒸汽、熱水、熱油與氣體等介質的溫度實行自動調節和控制,亦可使用在防止對過熱或熱交換場合,電動溫度控制閥結構簡單,操作方便,選用調溫范圍廣、響應時間快、密封性能可靠,并可在運行中隨意進行調節,因而廣泛應用于化工、石油、食品、輕紡、賓館與飯店等部門的熱水供應。主要適用于液體、氣體和蒸汽,在各種冷卻系統中的溫度控制。
產品特點
1、控制溫度的設定在執行器外部,設定溫度方便。
2、溫度調節閥數字顯示實測溫度、簡潔直觀明了。
3、調節型執行器的關鍵部件--控制器,采用混合集成電路,經過老化處理,用樹脂密封澆鑄,呈匣子狀,防潮、防震,體積小,可靠性高。
4、電動溫度調節閥合理設計上下電氣限位功能、弱電控制、可靠耐用。
5、機械結構堅固緊湊,聯線、安裝、調整維護十分簡便。
6、用電位器調整工作零點(起始)和行程滿位(終點)靈敏度等簡單易行。
7、溫控閥執行器具有過載保護、溫度保護及壓縮彈簧保證閥門的嚴密關閉的三種保護功能。
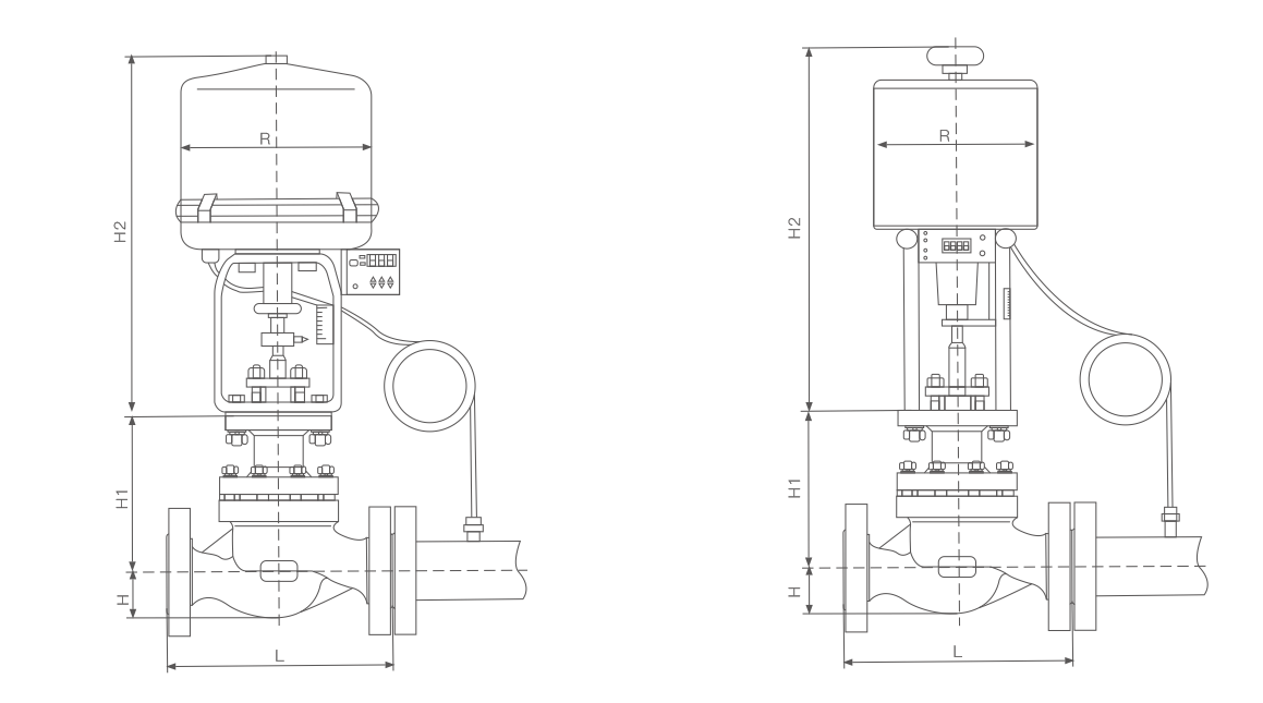
主要連接尺寸
|
公稱通徑DN(mm) |
20 |
25 |
32 |
40 |
50 |
65 |
80 |
100 |
125 |
150 |
200 |
|
|
L |
PN16/25 |
181 |
184 |
200 |
222 |
254 |
276 |
298 |
352 |
410 |
451 |
600 |
|
PN40 |
194 |
197 |
200 |
235 |
267 |
292 |
317 |
368 |
425 |
473 |
610 |
|
|
PN64 |
206 |
200 |
210 |
251 |
286 |
311 |
337 |
394 |
440 |
508 |
650 |
|
|
H |
PN16/25 |
52.5 |
57.5 |
75 |
75 |
85.5 |
92.5 |
100 |
110 |
142.5 |
158 |
170 |
|
PN40 |
52.5 |
57.5 |
75 |
75 |
82.5 |
92.5 |
100 |
117.5 |
150 |
167.5 |
187.5 |
|
|
PN64 |
65 |
40 |
85 |
85 |
90 |
102.5 |
107.5 |
125 |
172.5 |
195 |
207.5 |
|
|
H1 |
132 |
132 |
158 |
170 |
179 |
214 |
221 |
234 |
270 |
294 |
331 |
|
|
H2 |
CHL |
465 |
465 |
465 |
465 |
465 |
560 |
560 |
560 |
560 |
560 |
788 |
|
3810 |
373 |
373 |
495 |
495 |
495 |
700 |
700 |
700 |
725 |
725 |
725 |
|
|
D |
177 |
177 |
177 |
177 |
177 |
182 |
182 |
182 |
182 |
182 |
218 |
|
|
R |
225 |
225 |
225 |
225 |
225 |
257 |
257 |
257 |
310 |
310 |
310 |
|